"FOLAR's design for our renovation has transformed the way we live. Our home now feels calm, functional, and connected to the outdoors, with natural light making every space brighter and more open. Thoughtful storage has reduced clutter and stress, and improved heating and cooling means we’re comfortable year round."
Process
Designing a home is a layered and deeply personal journey. Our process is shaped to provide clarity, confidence, and steady guidance, allowing ideas to evolve thoughtfully and arrive on site ready to be built.
“James and the team have been amazing. From our first meeting with James we knew he could bring our vision to life. He has exceeded our expectations, such a talented Architect who has gone above and beyond to design an amazing house for us on a challenging block.”
Hannah & Dan
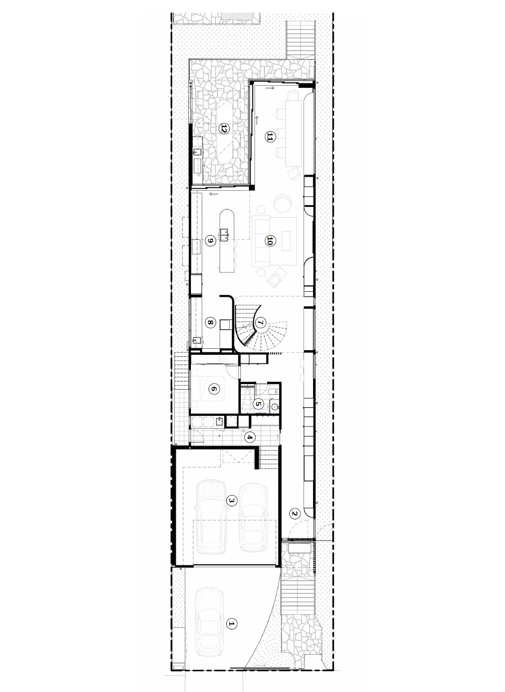
Our Clients for Spring Hill House

Our process is designed to guide clients confidently from first ideas through to construction.
We take responsibility for direction, detail, and delivery so you can focus on the excitement of creating your home.
Carrying the design through construction
Our involvement continues on site, supporting you and your builder as the project takes shape. By remaining engaged, we help ensure the architecture is delivered as intended and the experience remains calm, clear, and well managed.

Resolving the details
This is where design intent is protected. We carefully resolve materials, structure, and technical detail, preparing comprehensive documentation that removes uncertainty and supports an efficient and controlled build process.

Shaping the design
Concept design is where ideas are tested, refined, and brought to life. Through close collaboration and detailed 3D exploration, we develop a design direction that feels aligned, considered, and true to your vision before progressing further.

Understanding your brief and ambitions
Every project begins with listening. We take time to understand how you live, what matters most, and what you want your home to become. This early clarity allows the project to move forward with purpose and confidence.

Frequently Asked Questions
I’ve never built or renovated before. What should I expect?
Most of our clients are undertaking this process for the first time. Our role is to guide you through each stage with clarity and confidence, taking responsibility for direction, detail, and coordination so the experience feels structured rather than overwhelming.
How involved will you be throughout the project?
Our director and senior architects remain closely involved from concept through to construction. You are not handed off between teams or left navigating decisions alone. This continuity allows ideas to be carried through clearly and reduces uncertainty as the project progresses.
How does your design process work?
Our process unfolds in clear stages, beginning with understanding your brief, shaping the design, resolving technical detail, and carrying the architecture through construction. Each stage builds on the last, allowing decisions to be made thoughtfully and documented properly before moving forward.
Will I be able to visualise the design before construction?
Yes. We place strong emphasis on 3D modelling and visualisation during the concept stage. This allows you to understand the design clearly, make informed decisions early, and move into documentation with confidence.
How do you manage build costs?
Cost awareness is integrated throughout the design process. We work closely with trusted builders and consultants to test ideas early, review feasibility, and ensure the design aligns with realistic construction parameters before documentation is finalised.
Do you help with builder selection?
Yes. We regularly introduce clients to a small group of builders we trust and have worked with previously. Early engagement helps establish realistic pricing, build rapport, and support a smoother transition into construction.
How long does the design and documentation process take?
Timeframes vary depending on scale and complexity, but residential projects typically progress over several months. We prioritise steady progress over rushing decisions, allowing the design to be properly resolved and documented before construction begins.
Why is documentation such an important part of your process?
Documentation is where design intent is protected. Thorough and considered documentation reduces ambiguity on site, supports accurate pricing, and helps minimise variations during construction. It is a critical investment in the quality and longevity of the final outcome.
How are your fees structured?
Fees are tailored to the scale and complexity of each project and are typically structured as a fixed fee aligned to agreed stages. This provides clarity and allows us to resource your project properly throughout the process.
How are you different from other architects?
We operate as a small senior team with direct involvement throughout the project. Our clients value clear leadership, close engagement, and a process that prioritises resolution over endless iteration. This approach allows strong ideas to be carried through to construction without dilution.
When is the right time to get started?
Earlier is almost always better. Design, approvals, and documentation take time, and engaging early allows decisions to be made calmly and with foresight rather than under pressure.
Are you involved once construction starts?
Yes. We remain involved during construction to support you and your builder, answer queries, and help ensure the architecture is delivered as intended. Additional involvement can be tailored depending on the needs of the project.
.webp)
